Vente Appartement RENNES
282 120 € HAI - 65 m2 - 2 Chambres - Réf. 953

Caractéristiques

282 120 € HAI
Prix Honoraires Inclus : 282 120 €
Honoraires : 4,49% TTC*
Prix Honoraires Exclus : 270 000 €
* Les honoraires d'agence seront intégralement à la charge de l'acquéreur

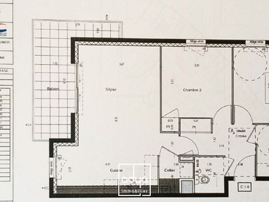
Appartement T3 - 2 chambres récent avec ascenseur et balcon

Nouveauté ADYA® IMMOBILIER : dans le quartier des Longchamps, proche des Lycées Chateubriand et Jolliot Curie, proche de la ligne B du métro et du campus de Beaulieu, proche des accès à la rocade et du parc des Gayeulles, découvrez cet appartement T3 de 65 m2 livré en 2016 au sein de la résidence SO PARC (promotion par Bati Armor).
La copropriété, comportant 78 appartements sur 3 cages d’escalier, est située rue Xavier Grall et l’appartement est situé au 1er étage avec ascenseur, une orientation ouest et un grand balcon de plus de 10 m2.
L’appartement dispose également d’une cave et d’un garage privatif en sous-sol. Son séjour d’environ 27 m2 possède une cuisine américaine, aménagée et équipée.
Il comprend 2 chambres d’environ 11 m2 chacune, dont une avec placard, d’une salle de bains indépendante et d’un WC indépendant.
Vous bénéficiez également d’un DPE performant (C), avec une chaudière individuelle au gaz. La copropriété est également en très bon état et d’un bon standing général.
L’avis de votre conseiller : Un bien qui sera disponible fin avril 2026, récent, dans une copropriété bien tenue et entretenue, avec cave, garage, ascenseur, et balcon.
Réf 953. Contact : Yvon ROUZIC- RSAC RENNES 853 638 799. Le prix de vente de 282.120 € est exprimé Honoraires d'Agence Inclus (H.A.I.) dont la valeur est équivalente à 4,49 % TTC du prix de vente. Prix Net Vendeur : 270.000 euros. Honoraires : 12.120 euros. ADYA est la marque d'immobilier traditionnel appartement à la SAS KARACTERRE, immatriculée au RCS ANGERS 899 365 811.
Assainissement collectif. DPE B (86 kWh/m²) et GES C (16 kg CO2/m²) - Montant estimé des dépenses annuelles d'énergie pour un usage standard : 630 € à 890 €/an - année de référence 2023. Taxe Foncière 2025 : 1300 €. Charges de copropriété : 1200 €/an. Pas de procédures en cours.
Les informations sur les risques auxquels ce bien est exposé sont disponibles sur le site Géorisques : www.georisques.gouv.fr


Les informations sur les risques auxquels ce bien est exposé sont disponibles sur le site Géorisques : www.georisques.gouv.fr


  • 65 m²
  • 3 Pièce(s)
  • 2 Chambre(s)
  • 1 sdB
Diagnostics

Détails du bien

  • Référence : 953
  • Ville : RENNES
  • Transaction : Vente
  • Type de bien : Appartement
  • Prix HAI : 282 120 €
  • Syndicat en procédure : NC
  • Copropriété - nombres de lots : 160
  • Charges annuelles : 1 200
  • Taxe foncière : 1 300 €
  • Surface : 65 m2
  • Année de construction : 2016
  • Nb d'étages : 5
  • Surface séjour : 27 m2
  • Nb de pièces : 3
  • Nb de chambres : 2
  • Nb de salle bains : 1
  • Nbr de balcon : 1
  • Surf. balcon : 10 m2
  • Cuisine : Américaine
  • Chauffage : Gaz de ville
Localisation
Contactez-nous

* champs obligatoires
Partager ce bien

Votre interlocuteur

ADYA Bretagne

06.68.77.29.29
  • 0
  • 0